 |
|
 |
| |
Die Wohnfläche von 60 m² ermöglicht dem Gast einen angenehmen Aufenthalt, in mit neuen Möbeln ausgestatteten Räumen. |
|
| |
|
|
| |

|
 |
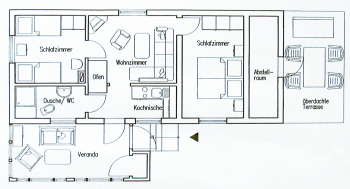
Zwei Schlafzimmer, ein Wohnzimmer und eine komplett eingerichtete Küche, eine Dusche/WC, Solarium sowie der Wintergarten bieten zu jeder Jahreszeit Wohnkomfort. Für behagliche Wärme sorgt ein Heißluftkachelofen. Einen gemütlichen Grillabend können Sie auf der überdachten Terrasse genießen. Einen Grill stellen wir Ihnen gern zur Verfügung.
Auf der linken Seite können Sie sich in unserer Bildergalerie zum Ferienhaus 1 einen noch besseren Eindruck machen. Klicken Sie dafür nur auf das Bild.
|
|
| |
|
|
|
|
| |

Grundriss Ferienhaus 1 |
|
Sollten Sie sich für den besseren Überblick für einen Grundriss interessieren, finden Sie diesen gleich links.
Vermietungspreis von 50,00 bis 75,00 € / Übernachtung inkl. Bettwäsche und Handtücher.
Für die Buchung wählen Sie bitte das Ferienhaus 1 im Kontaktformular an. Wir werden uns zeitnah mit Ihnen in Verbindung setzen und Sie über Termine informieren. |
|
|